Proyecta 360
De planos enredados a un modelo BIM ordenado en semanas.

No es solo aprender Revit. Es un método paso a paso que transforma cómo estudiantes y profesionales logran proyectos completos sin frustrarse.

Quiero transformar mi forma de trabajar 🚀

Durante años me perdí en horas interminables con AutoCAD. Cambios que rompían todo, planos que nunca cerraban, cálculos eternos en Excel.

El problema no era el software… el problema era que no tenía un método.

Después de formarme como arquitecta y BIM Manager, diseñé un sistema progresivo que ya ayudó a decenas de estudiantes y profesionales a pasar del caos 2D al orden BIM.

Hoy lo empaqué en Proyecta 360, para que vos también tengas un camino claro.”

Proyecta 360
El Método Smart Project
En semanas, tu primer proyecto completo en Revit, sin frustraciones.
1️⃣ Ordená tu base
Prepará tu CAD sin errores.
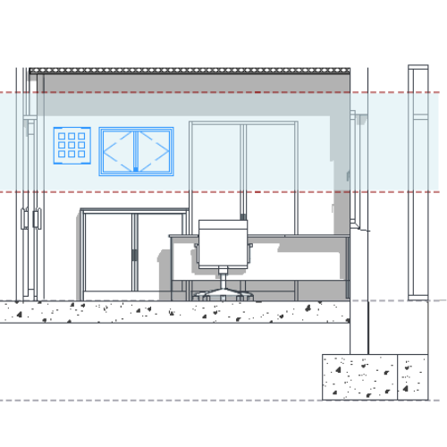
2️⃣ Modelá sin trabas
Usá herramientas BIM de forma simple.
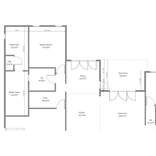
3️⃣ Documentá automático
Planos, cortes y vistas listas en minutos.
4️⃣ Calculá y presentá
Tablas y cómputos al instante.
Testimonios de nuestros clientes

No sabía ni abrir Revit. Hoy presento mi primer proyecto completo gracias al paso a paso.

  Estudiante de Arquitectura  

Juan Perez
Juan Perez

En semanas estaba sacando planos que antes me llevaban meses.

Rocio Gonzales
Rocio Gonzales

Antes de Proyecta 360 me llevaba días organizar un plano completo. Con este método, armé mi primer modelo BIM en solo semanas. Lo que más me impactó fue cómo pasé de sentirme perdida a tener todo coordinado y listo para presentar. Realmente me dio la confianza que necesitaba.

Marina Lopez
Marina Lopez
Dias
:
Horas
:
MinMinutos
:
SegSegundos
Oferta de lanzamiento limitada
Accedé a Proyecta 360 al precio especial de preventa. Más barato que una salida de finde 🍕🍷, y con un valor que te va a acompañar toda la carrera o tu profesión. Incluye: ✔ Acceso al programa completo. ✔ Archivos de práctica. ✔ Comunidad privada.

No te quedes en el caos del 2D.
Transformá tu forma de trabajar con Revit en semanas.
Accedé hoy a Proyecta 360

Quiero empezar ahora 🚀
Cerrar X